Duisburg:
Gemütliches Zuhause auf 43 m² in Wanheimerort
Objekt-Nr.: DU-47055-2026-002

Hausfront

Wohnzimmer (KI-Design)

Schlafzimmer (KI-Design)

Badezimmer (KI-Design)

Treppenhaus

Flur

Flur mit Wohnungstür

Sicherungskasten (Flur)

Wohnzimmer

Wohnzimmer (KI-Design)

Schlafzimmer

Schlafzimmer (KI-Design)

Badezimmer

Badezimmer (KI-Design)

Küche

Küche (KI-Design)

Keller

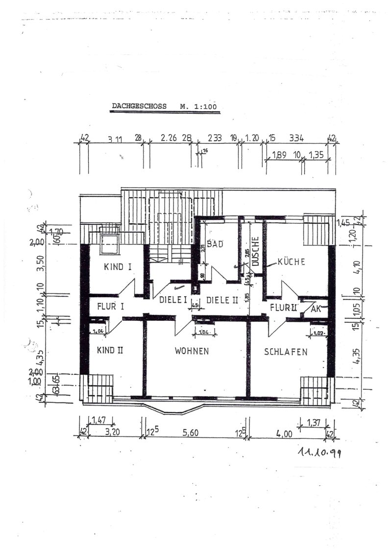
Grundriss


















Preis:
75.000 €
Wohnfläche ca.:
43 m²
Zimmeranzahl:
2
Diese kleine Wohnung mit ca. 43 m² Wohnfläche befindet sich in der 2. Etage eines aus zwei Wohneinheiten bestehenden Gebäudekomplexes und eignet sich für Kapitalanleger und Selbstnutzer. Das Gebäude ist unterkellert und in massiver Bauweise errichtet. Das Haus ist an das Glasfasernetz angeschlossen und die Wohnung verfügt zusätzlich über einen Kellerraum. Die Anordnung der Räume (Flur, Wohnzimmer, Küche, Schlaf- und Badezimmer) ist aus dem beigefügten Grundriss ersichtlich. Die Wohnung ist sofort bezugsfrei.
Wohnungstyp: Etagenwohnung
Etage: 2
Etagenanzahl: 4
Provisionspflichtig: ja
Provision: 3,57%
Bad: Dusche
Anzahl Schlafzimmer: 1
Anzahl Badezimmer: 1
Keller: ja
Umgebung: Apotheke, Bahnhof, Bus, Einkaufsmöglichkeit, Grundschule, Kindergarten, Post, Wohngegend
Möbliert: nein
Qualität der Ausstattung: normal
Baujahr: 1958
Bezugsfrei ab: 15.04.2026
Bodenbelag: Fliesen, Laminat
Zustand: gepflegt
Energieklasse: E
Heizung: Fernwärme
Befeuerungsart: Fernwärme
Energieausweistyp: Verbrauchsausweis - gültig vom 01.05.2018 bis 30.04.2028
Energieeffizienz-Klasse: E
Baujahr laut Energieausweis: 1958
Bei Abschluss eines Kaufvertrages wird eine Vermittlungs-/ Nachweisprovision in Höhe von 3,57 % inklusive 19 % Mehrwertsteuer auf den Kaufpreis vom Käufer fällig.
Wir weisen auf unsere Allgemeinen Geschäftsbedingungen hin. Durch weitere Inanspruchnahme unserer Leistungen erklären Sie die Kenntnis und Ihr Einverständnis.
Das könnte Ihnen auch gefallen

Immobilien B & D Dietrich GmbH
Herr Dirk Dietrich
Zum Steinhof 15
47259 Duisburg
Büro: +49 203 71285137
Mobil: +49 152 28142066
Fax: +49 203 39224816
























