Duisburg:
Moderne Dachgeschosswohnung mit Fernblick
Objekt-Nr.: 47057-2026-001

Hauseingang

Hausflur

Wohnzimmer

Wohnzimmer

Flur

Flur II

Bad mit Eckbadewanne

Badezimmer mit Eckbadewanne

Bad mit Waschmaschine/Trockner

Dusche

Esszimmer (Kinderzimmer I)

Gästezimmer (Kinderzimmer II)

Küche mit Fenster

Küche mit Essecke

Schlafzimmer

Treppenhaus (Dachgeschoss)

Abstellkeller

Garten mit Sitzmöglichkeit

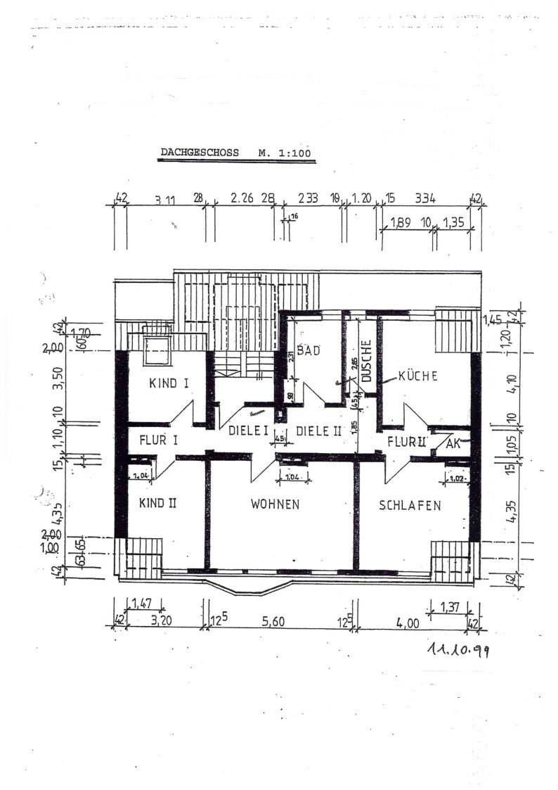
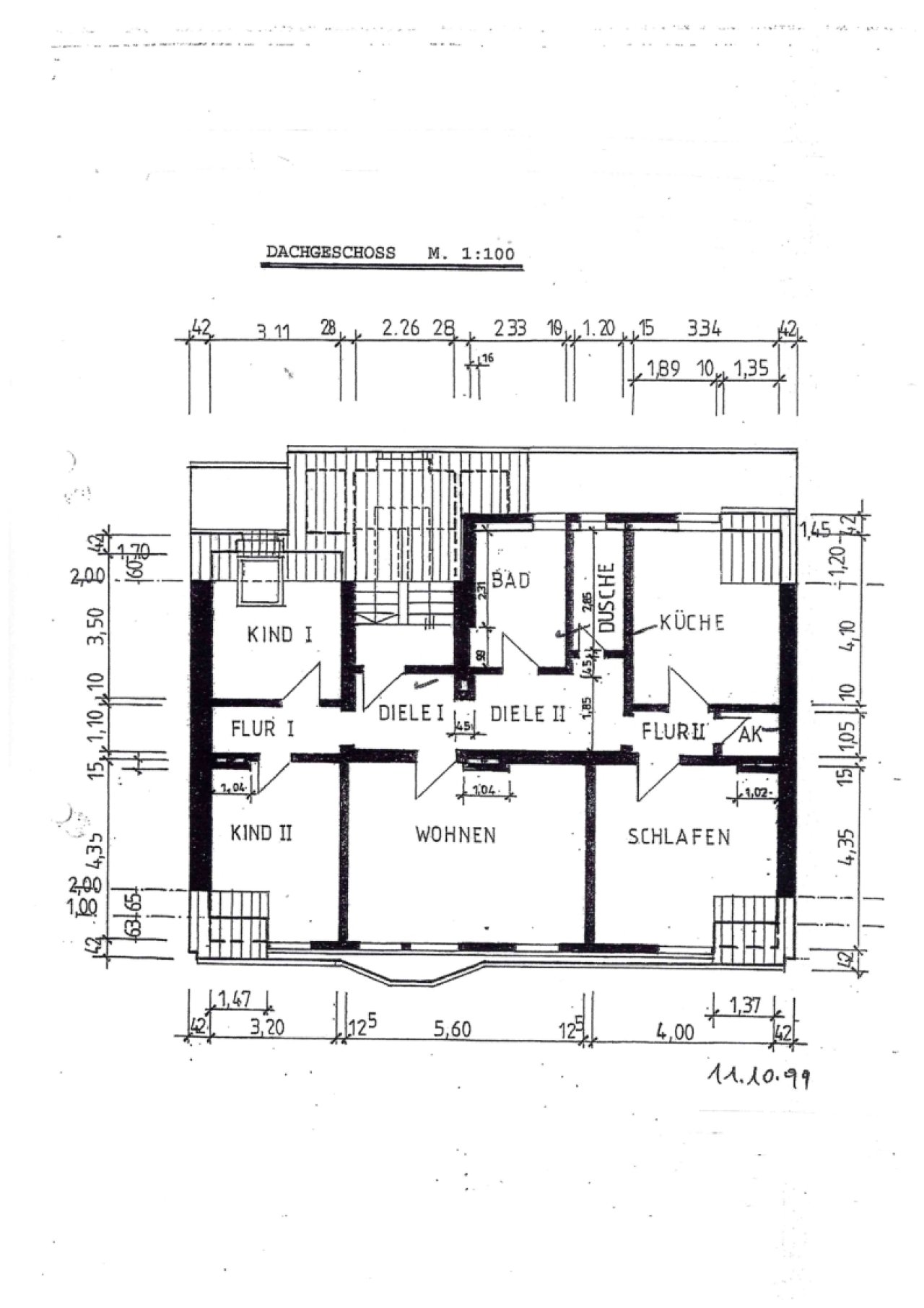
Grundriss



















Preis:
206.000 €
Wohnfläche ca.:
103 m²
Zimmeranzahl:
4
Diese ansprechende Dachgeschosswohnung verspricht ein behagliches und modernes Wohngefühl auf großzügigen 103 m². Mit insgesamt vier Zimmern, darunter drei Schlafzimmer (bzw. 1 Schlafzimmer und 2 Kinderzimmer) und zwei geschmackvoll ausgestatteten Badezimmern, bietet sie ausreichend Raum für Familie und Gäste.
Besonders hervorzuheben ist das elegante Badezimmer mit Eckbadewanne und Fenster, das für angenehmes Tageslicht sorgt. In der Badewanne zu liegen, ist hier ein wahres Vergnügen, das allen Alltagsstress vergessen lässt. Zudem ermöglicht das Fenster nicht nur angenehme Helligkeit, sondern sorgt auch für eine natürliche Belüftung, was den Komfort zusätzlich steigert. Der Fernblick aus den Fenstern rundet das Wohngefühl mit einer schönen Aussicht ab. Ein praktischer Dachboden und eine Abstellkammer bieten zusätzlichen Stauraum.
Die Räume und deren Anordnung entnehmen Sie dem beigefügten Grundriss. Zudem stehen Ihnen ein eigener Kellerraum, ein Gemeinschaftstrockenraum und ein kleiner Abstellraum für Fahrräder zur Verfügung.
Wohnungstyp: Dachgeschoss
Etage: 4
Etagenanzahl: 4
Provisionspflichtig: ja
Provision: 3,57%
Bad: Dusche, Wanne, Fenster
Anzahl Schlafzimmer: 3
Anzahl Badezimmer: 2
Garten: ja
Dachboden: ja
Keller: ja
Umgebung: Apotheke, Bahnhof, Bus, Einkaufsmöglichkeit, Fitness, Kino, Park, Post, Spielplatz, Wald
Möbliert: nein
Ausblick: Fernblick
Qualität der Ausstattung: normal
Baujahr: 1902
Hausgeld: 450 €
Bodenbelag: Fliesen, Laminat
Zustand: gepflegt
Energieklasse: C
Heizung: Fernwärme
Befeuerungsart: Fernwärme, Nahwärme
Energieausweistyp: Bedarfsausweis - gültig vom 27.09.2018 bis 27.09.2028
Energieeffizienz-Klasse: C
Baujahr laut Energieausweis: 1902
Bei Abschluss eines Kaufvertrages wird eine Vermittlungsprovision in Höhe von 3,57 % inklusive 19 % Mehrwertsteuer auf den Kaufpreis vom Käufer fällig.
Die von uns gemachten Informationen beruhen auf Angaben des Verkäufers bzw. der Verkäuferin. Für die Richtigkeit und Vollständigkeit der Angaben kann keine Gewähr bzw. Haftung übernommen werden. Ein Zwischenverkauf und Irrtümer sind vorbehalten.
Wir weisen auf unsere Allgemeinen Geschäftsbedingungen hin. Durch weitere Inanspruchnahme unserer Leistungen erklären Sie die Kenntnis und Ihr Einverständnis.
Das könnte Ihnen auch gefallen

Immobilien B & D Dietrich GmbH
Herr Dirk Dietrich
Zum Steinhof 15
47259 Duisburg
Büro: +49 203 71285137
Mobil: +49 152 28142066
Fax: +49 203 39224816























